
Rohdiamant vis-à-vis zum Roseneck – helle 3,5 Zimmer Altbau Wohnung mit Wintergarten
Fakten
- Adresse: Forckenbeckstraße, 14199 Berlin
- Objekt-ID: # AS-26076
- Bezirk: Charlottenburg | Wilmersdorf
- Kaufpreis: 450.000 EUR
- Verfügbar ab: sofort
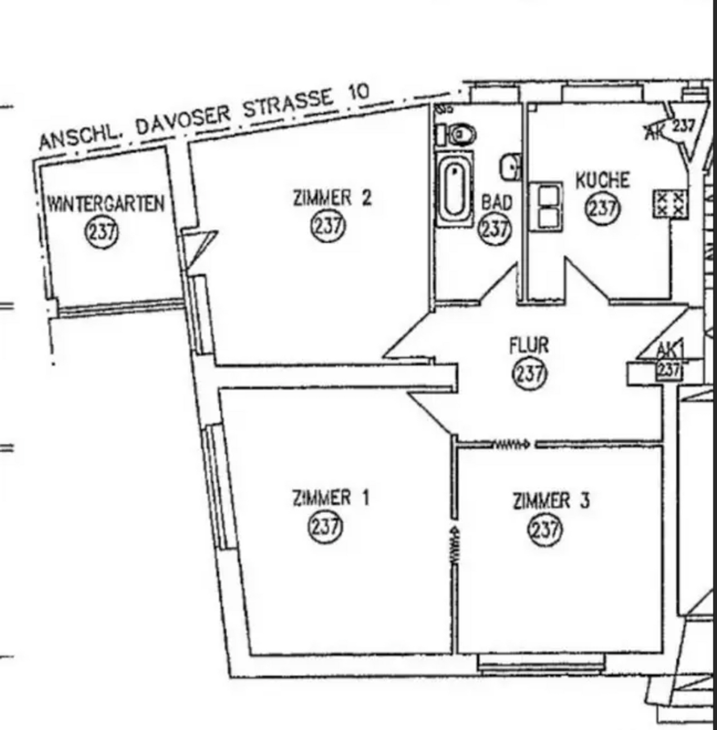
- Wohnfläche: 83 m2
- Objektzustand: renovierungsbedürftig
- Zimmer: 3,5 Zimmer
- Badezimmer: 1
- Provision: 3,57% inkl. gesetzlicher MwSt.
- Baujahr: 1930
- Heizungsart: Fernwärme
- Energieträger: Fernwärme
Beschreibung
Diese Wohnung ist ein echter Rohdiamant mit viel Potenzial und bietet die seltene Chance, sich ein Zuhause ganz nach den eigenen Vorstellungen zu schaffen. Die bestehende Substanz bildet eine hervorragende Grundlage für eine individuelle Neugestaltung und lässt viel Raum für kreative Ideen und moderne Wohnkonzepte.
Besonders hervorzuheben sind die hohen Decken und das originale Fischgrätparkett, die der Wohnung bereits heute einen klassischen Altbaucharme verleihen. Mit der passenden Sanierung lässt sich hier eine stilvolle Kombination aus Altbaucharakter und zeitgemäßem Wohnen realisieren.
Der sonnige Wintergarten erweitert den Wohnbereich und sorgt für eine angenehme, lichtdurchflutete Atmosphäre. Ein Bereich, der sich ideal als Rückzugsort oder zusätzlicher Wohnraum gestalten lässt.
Für die geplante Aufwertung liegt bereits ein Angebot für eine Kernsanierung in Höhe von ca. 50.000 € vor. Dieses umfasst unter anderem die Erneuerung der Elektrik, die Überarbeitung der Rollläden, ein neues Badezimmer inklusive Sanitärobjekte und Fliesen, die Aufarbeitung der Böden, notwendige Abrissarbeiten, das Fliesen der Küche sowie das Weißeln der Wände. Dadurch sind die wesentlichen Maßnahmen klar definiert und gut kalkulierbar.
Abgerundet wird das Angebot durch einen ca. 12,5 qm großen Keller, der zusätzlichen Stauraum bietet.
Insgesamt handelt es sich um eine Wohnung mit viel Entwicklungspotenzial, ideal für Käufer, die ihre eigenen Vorstellungen verwirklichen und ein individuelles Zuhause schaffen möchten.
Ausstattung
Die Wohnung verfügt über folgende Ausstattungs-Highlights:
✅ sonniger Wintergarten
✅ viel Potenzial
✅ Angebot für eine Kernsanierung i.H.v. ca. 50.000€ liegt vor
✅ ca. 12,5qm großer Keller
✅ orig. Fischgrätparkett
✅ hohe Decken
Außerdem lässt die Ausstattung Ihrer Wohnung nahezu keinen Wunsch offen und weist u.a. folgende Ausstattungsmerkmale auf:
✅ ideale Raumaufteilung
✅ großzügiger Grundriss
✅ ruhig gelegen
✅ praktische Garderobennische
✅ solide Instandhaltungsrücklage
Lage
Die Immobilie befindet sich in einer ruhigen und gleichzeitig sehr gut angebundenen Lage im beliebten Ortsteil Schmargendorf im Bezirk Charlottenburg Wilmersdorf. Die Umgebung ist geprägt von gepflegten Altbauten, viel Grün und einer gewachsenen Nachbarschaft mit hoher Lebensqualität.
Die Anbindung an den öffentlichen Nahverkehr ist hervorragend. In kurzer Entfernung befinden sich mehrere U Bahn und S Bahn Stationen, unter anderem der S Bahnhof Hohenzollerndamm sowie die U Bahnlinie U3 mit Anschluss Richtung City West und Innenstadt. Ergänzt wird dies durch diverse Buslinien, die eine schnelle und flexible Mobilität gewährleisten. Mit dem Auto besteht eine sehr gute Anbindung an die Stadtautobahn A100, wodurch sowohl die Berliner Innenstadt als auch das Umland zügig erreichbar sind.
Die Nahversorgung ist ausgezeichnet. In der näheren Umgebung finden sich zahlreiche Einkaufsmöglichkeiten wie Rewe, Edeka und Lidl, ergänzt durch Bäckereien, Apotheken sowie kleine Einzelhändler entlang der Breite Straße und Berkaer Straße. Für ein erweitertes Shoppingangebot ist der Kurfürstendamm nur wenige Minuten entfernt.
Auch das Bildungsangebot ist vielfältig. Mehrere Kitas und Grundschulen befinden sich im direkten Umfeld. Weiterführende Schulen sowie renommierte Einrichtungen wie das Evangelische Gymnasium zum Grauen Kloster sind ebenfalls gut erreichbar.
Für Erholung und Freizeit bietet die Lage zahlreiche Möglichkeiten. Der nahegelegene Grunewald sowie der Volkspark Wilmersdorf laden zu Spaziergängen, Sport und Entspannung im Grünen ein. Sportvereine, Fitnessstudios sowie Cafés und Restaurants in der Umgebung runden das Angebot ab.
Insgesamt eine Lage, die ruhiges Wohnen im Grünen mit einer hervorragenden Infrastruktur und schneller Anbindung an die Berliner City ideal verbindet.
Sonstiges
Besichtigungen: Schnell, professionell, individuell
Vereinbaren Sie Ihren Besichtigungstermin flexibel nach Ihren Vorstellungen. Wir garantieren eine schnelle und professionelle Abwicklung, die genau auf Ihre Bedürfnisse zugeschnitten ist. Unsere Experten stehen Ihnen jederzeit für alle Fragen zur Verfügung – reagieren schnell und bieten individuelle Lösungen.
Bitte beachten Sie, dass alle Immobilieninformationen direkt vom Verkäufer stammen und IMMODO keine Haftung für die Richtigkeit dieser Angaben übernimmt. Wir empfehlen, relevante Details wie Wohnfläche, Baujahr und Aufteilung der Flächen durch entsprechende Fachexperten überprüfen zu lassen.
Verkaufen mit IMMODO: Maßgeschneiderter Service mit maximalem Engagement
Planen Sie den Verkauf Ihrer Immobilie? Bei IMMODO profitieren Sie von einem maßgeschneiderten Service, der sich durch maximales Engagement und professionelle Marktkenntnisse auszeichnet. Unser engagiertes Team setzt innovative Strategien ein, um Ihren Verkauf nach Maß zu gestalten und optimale Ergebnisse zu erzielen. Wir setzen alles daran, Ihren Wunschpreis zu erzielen und gehen dabei individuell auf Ihre persönlichen Anforderungen ein. Lassen Sie sich von unserer individuellen und professionellen Beratung überzeugen, denn Ihre Zufriedenheit steht bei uns an erster Stelle.
Kontaktieren Sie uns noch heute und erleben Sie, wie wir Ihre Erwartungen übertreffen – Ihr IMMODO-Team

